Italiano
Qualità e serietà al vostro servizio

San Carlo C.se Quadrilocale con terrazzo

99.000 €
104 m2
3 Camere
1 Bagni
Codice
V000534
Città
San Carlo Canavese
Categoria
4 o più locali
Locali
4
Box
1
Mq Balcone
2
mq Terrazzo
5
Piano
2
Classe energetica
In fase di valutazione
Stato Immobile
Buono
Lati Liberi
3
Giardino
No
Arredi
Non Arredato
Tipo Soggiorno
Soggiorno
Tipo Cucina
Abitabile
Riscaldamento
Autonomo
Tipo Riscaldam.
Caldaia a Condensazione
Tipo Impianto
Radiatori
Fonte Energetica
Metano
Acqua Calda
Autonoma
Infissi
Alluminio Doppio Vetro
Serramenti
Buono
Persiana
Tapparella PVC
Accessori
Doppi Vetri, Porta Blindata
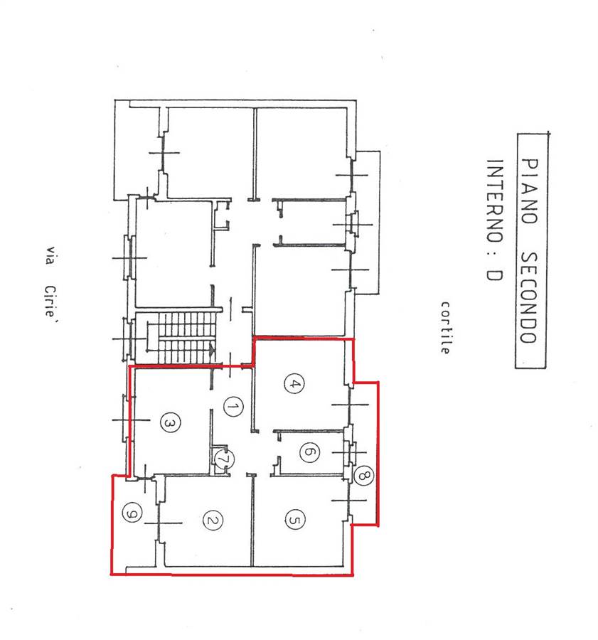
In posizione collinare, vicina al centro paese, proponiamo in vendita un appartamento termoautonomo di quattro locali con terrazzo, posto al secondo piano di uno stabile condominiale di piccole dimensioni.
Per la conformazione del terreno su cui sorge l'edificio il secondo piano è dal lato strada (quindi è garantita la vista aperta sul panorama montano e naturalistico), dal lato cortile all'appartamento si accede comodamente con una sola rampa di scale.
La disposizione degli ambienti interni è su pianta quadrata, dal corridoio di ingresso si accede ad ogni stanza e l'appartamento è composto di: cucina abitabile, soggiorno, entrambi con accesso al terrazzino, due grandi camere anche esse dotate di accesso ad un balcone, bagno in stato originale con finestra e ripostiglio.
L'esposizione dell'appartamento garantisce il sole al mattino nelle camere da letto e tanto sole e luce per tutto il resto della giornata nella zona cucina e soggiorno.
La cantina si trova al piano interrato.
L'alloggio è dotato di porta blindata, tende da sole, serramenti in alluminio con zanzariere, caldaia a condensazione Buderus.
E' disponibile un box auto di mq 15 in cortile condominiale.
La vicinanza al centro paese, alle scuole, ai servizi della zona, alla casa di cura e alla Citta di Ciriè, rendono questa soluzione abitativa adatta a famiglie in cerca di confort e comodità in ogni momento della giornata.

Mappa

Via Ciriè 41, San Carlo Canavese (TO)

Richiedi informazioni

Invia

Condividi

Cookie preference