Qualità e serietà al vostro servizio
Toggle navigation
Home
Immobili
Vendite
Affitti
Immobili commerciali
Terreni
Chi siamo
Servizi
Contatti
Compatta pannello di ricerca immobili
Espandi pannello di ricerca immobili
Tipologia
Vendite
Affitti
Immobili commerciali
Terreni
Categoria
Qualsiasi
1 locale
2 locali
3 locali
4 o più locali
Appartamento
Attico
Azienda agricola
Baita
Cantina
Capannone
Casa singola
Castello
Duplex
Garage
Hotel
Laboratorio
Loft
Magazzino
Maisonette
Mansarda
Negozio
Porzione di casa
Porzione di villa
Posto auto
Posto barca
Rustico / Casale
Stabile / Palazzo
Tenuta
Terreno
Terreno agricolo
Terreno edificabile
Ufficio
Villa
Villa bifamiliare
Villetta a schiera
Città
Tutte
Balangero (TO)
Caselle Torinese (TO)
Ciriè (TO)
Corio (TO)
Lanzo Torinese (TO)
Mathi (TO)
Nole (TO)
Robassomero (TO)
San Francesco al Campo (TO)
Zona
Tutte
Prezzo (da - a)
Mq (da - a)
Codice
Ordinamento
Inserimento
Codice
Categoria
Città
Zona
Prezzo
Metri quadri
Cerca
Ciriè "Zona Ospedale" Bilocale con giardino e box auto
99.000 €
62 m
2
1 Camere
1 Bagni
Previous
Next
Foto
Planimetrie
Codice
V000532
Città
Ciriè
Categoria
Appartamento
Locali
2
Box
1
Mq Box
15
Mq Giardino
20
Classe energetica
E
69,99
Stato Immobile
Ottimo
Posizione
Centro
Lati Liberi
2
Giardino
Privato
Tipo Soggiorno
Soggiorno
Tipo Cucina
A Vista
Riscaldamento
Autonomo
Tipo Riscaldam.
Caldaia a Condensazione
Tipo Impianto
Radiatori
Fonte Energetica
Metano
Acqua Calda
Autonoma
Infissi
Legno Doppio Vetro
Serramenti
Buono
Persiana
Persiana Legno
Accessori
Cancello Elettrico, Doppi Vetri, Porta Blindata, Ripostiglio, Zanzariere
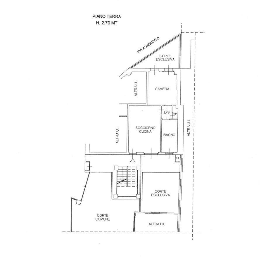
Ciriè "Via Alberetto" zona centrale adiacente all'ospedale, in piccolo condominio di recente costruzione, si propone in vendita appartamento al piano terreno con ingresso su soggiorno con angolo cottura, disimpegno, camera da letto, bagno e ripostiglio.
Rende particolare l'appartamento il piccolo giardino privato e cortile privato.
Incluso nel prezzo autorimessa all'interno del cortile con accesso tramite cancello automatico.
Riscaldamento autonomo.
Mappa
Via Alberetto 23, Ciriè (TO)
Richiedi informazioni
Nominativo *
Telefono *
Email *
Dettagli richiesta *
Autorizzo il trattamento dei miei dati personali in base Regolamento UE n. 679/2016
Privacy Policy
Autorizzo al trattamento dei dati per finalità di marketing, attività promozionali, offerte commerciali ed indagini di mercato.
Invia
Condividi
Tweet
Mantieni impostazioni di default X
Uso dei cookies
Questo sito fa uso di cookies. I nostri cookies (propri) e quelli dei nostri Partners (cookies di terzi) servono per poterti offrire un'esperienza unica con noi. Per questo motivo, insieme ai nostri partners, raccogliamo e processiamo informazioni non sensibili (come l'identificatore del tuo dispositivo o le pagine che visiti).
In qualsiasi momento potrai eliminare, modificare o verificare le informazioni che condividi in
Cookie preference
o nella nostra
Cookie Policy
e
Privacy Policy
.
Necessari
Funzionali
Profilazione
Analitici
Accetta tutti
Rifiuta tutti
Accetta selezionati
Cookie preference